Ground Breaking of Mid Century Modern Bungalow in Lakeway / Austin Tx
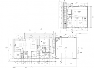
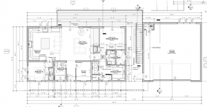
We designed this 1,100 square foot mid century style bungalow. I know that there are many people trying to simplify their lives and downsize. This is a two bedroom home design that has the most effective use of space. There is a 40 square foot walk in shower in the master. This is an open floor plan with 2 bedrooms, two bathrooms and a study with a detached 2 bedroom 1 bath 700 square foot apartment above the garage that can be used for rental income. Click on the individual pictures to see the detail of the floor plan and elevations. We are currently in the site prep phase. We cleared the lot, pulled stumps where the foundation footprint is, and are in the process of doing soil tests for the septic system.
- Preparing Lot for the construction of a new home in Austin Tx
- Ground breaking on a Mid-Century Modern bungalow in Lakeway, Texas.






