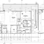
Modern Bungalow remodeling in Lakeway / Austin Tx
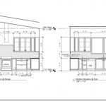
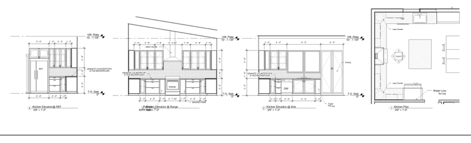
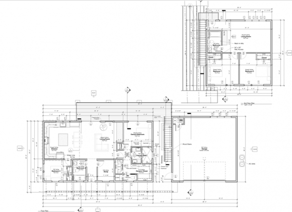
In addition to kitchen and bathroom remodeling in Austin TX, we also design and build homes. This is a custom home we designed and have broken ground in Lakeway TX. We recently won first place in the state of TX for our home design. It is a home we are building in Fall Creek Estates. Our company mainly remodels kitchens and bathrooms in Austin TX.
- Ground breaking on a Mid-Century Modern bungalow in Lakeway, Texas.
- Preparing Lot for the construction of a new home in Austin Tx






